
komu
木夢 | hakuba
A place to rest. To dream among trees.
Unwind and embrace the beauty of the seasons.
Welcome to KOMU. Your mountain retreat awaits.
Nestled in the tranquil Misorano area, KOMU is a thoughtfully designed three-bedroom chalet offering contemporary comfort near the heart of the village. It’s a stay that balances easy access with space to unwind.
Designed for connection, our light-filled living and dining areas flow seamlessly together - perfect for shared meals, slow mornings and relaxed evenings with family or friends. After a day of exploration, retreat to restful bedrooms where premium beds ensure a deep and restorative sleep, or immerse yourself in our signature hinoki wood bath.
Well positioned within the valley, KOMU offers a comfortable base to experience Hakuba at your own pace. From snow-covered winters to lush green summers, the beauty of the Japanese Alps lies just beyond your door.
Our Amenities

Living Room
55-inch Smart TV| Netflix|YouTube

Dining Room
Seats 6 comfortably
Tableware|Glassware|Cutlery

Kitchen
IH system kitchen|Refrigerator
Dishwasher|Microwave oven
Drip coffee maker|Toaster
Rice cooker|Air purifier

Bedroom 1
Semi-double twin bed
(120cm x 195cm)

Bedroom 2
Semi-double twin bed
(120cm x 195cm)

Bedroom 3
Semi-double twin bed
(120cm x 195cm)
En-suite toilet|Private balcony

Bathroom
1 Bathroom with hinoki bathtub
1 En-suite Bathroom
2 toilets
shampoo|conditioner|body wash
body cream|bath & hand towels

Laundry
Washer|Dryer|Iron
Laundry detergent

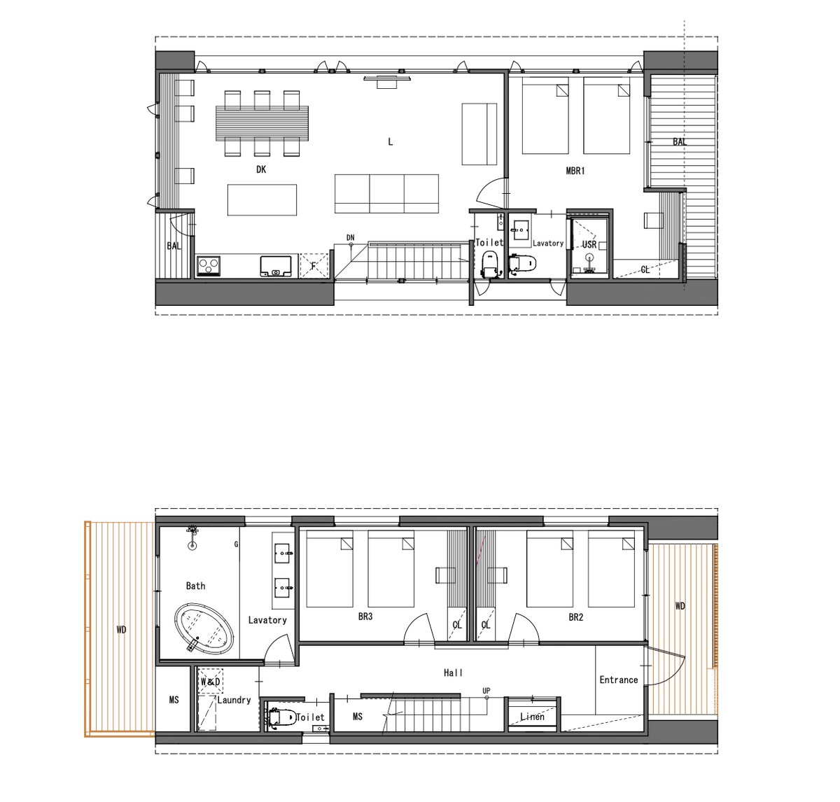
Floorplan
1st floor
2 bedrooms|bathroom|toilet|laundry
2nd floor
1 bedroom with ensuite
living|dining|kitchen|toilet
FAQs
Your Guide to Staying at KOMU
Can I have an early check-in?
Do you provide pick up service?
Can I send my luggage ahead of my check-in date?
Is there daily housekeeping service?
Does KOMU offer dining options?
Does KOMU provide Wi-Fi access?
How far is KOMU from basic amenities?
Is smoking or vaping allowed?
Which are the nearest ski resorts?
How do I get to the ski resorts if I don’t drive?
Can I invite additional friends or family members to stay overnight?
Contact Us
We'd love to hear from you. Your adventure starts here!
Your Hosts
We are a husband and wife team from Singapore. Living in Hakuba has deepened our appreciation for nature and the beauty of the four seasons. We look forward to sharing with guests from around the world - the breathtaking mountains, peaceful surroundings and seasonal beauty of Hakuba.
KOMU (木夢)
“Tree Dream” - a name that reflects our vision of a peaceful,
nature-infused retreat.
A place to rest. To dream among trees.



































